

规格型号:0.7——14MW
热效率:85%
适用燃料:生物质颗粒
应用范围:供暖,集中供热、用热水
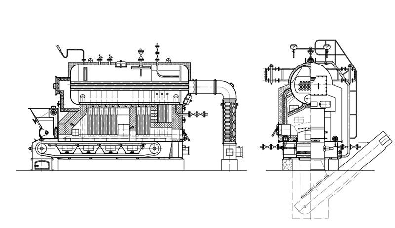
卧式链条生物质热水锅炉,是一种卧式三回程水火管混合式锅炉,在锅筒内布置一束螺纹烟管。炉膛左右二侧装有光管水冷墙。采用轻型链条炉排实现机械加料,配有鼓风机、引风机进行机械通风,并装有刮板式出渣机实现自动出渣。该炉前后拱采用新型的节能技术炉拱。燃料从料斗落到炉排上,进入炉膛燃烧后,火焰经过后拱折射向上通过本体两侧燃烬室折向转到前烟箱,再由前烟箱折回锅内管束,通过后烟箱进入省**器,然后由引风机抽引通过烟道**烟囱排向大气。
性能优势:
1、锅炉型式为卧式快装锅炉、工质自然循环。
该锅炉换热系统由锅筒、左右集箱、水冷壁组成,主要受热面有炉膛水冷壁,部分锅筒和锅筒内对流管束。
2、设计性能**:
该锅炉主要受热面管采用20#低中压锅炉用无缝钢管制成,锅筒采用锅炉专用钢板制成。左右集箱采用无缝钢管制成。
3、锅炉炉拱采用耐火混凝土捣制而成。后拱低而长,因此燃烧良好,两翼烟道和侧墙砖采用耐火材料烧结砖。锅炉前墙、后墙采用通用耐火砖。
4、炉排配风合理,燃烧室较大,**种适用性强。适应各类烟**或无烟**、混合**。燃烧充分。由于高温烟气*****入沉降室,再由两侧进入两翼烟道、前烟箱,因而消烟除尘效果好。
5、水循环简单,受压部件结构合理,在保证水质的情下,完全可以**运行。
6、燃烧设备为快装炉排,燃烧设备在厂内制造安装完毕,运输**工地后直接安装在地基上即可。具有结构合理、紧凑,钢材耗量低,使锅炉性能、重量、结构尺寸与国内同容量产品相比具有明显的**性。
7、节能环保:采用***新气化燃烧技术,设置了**的气化旋转燃烧室,内置旋流二次配风,使燃料燃烧更加充分。
8、并采用**传热元件-螺纹烟管,配以合理的烟气流速,使锅炉热效率更高。热效率高达85%以上。
9、锅炉采用**推广的绿色可再生生物质木质颗粒燃料,CO2达到零排放,烟尘排放浓度小于50mg/m3,烟气度黑小于林格曼I级,各项指标均达到**一类地区环保标准。
10、运行费用低:由于锅炉本身所使用的燃料木质生物质颗粒是属于**支持推广的新型环保燃料,是一种可再生资源。具有热值高,成本低,来源广泛的特点。其运行成本仅是电锅炉的四分之一,燃油(气)锅炉的二分之一以下。
11、自动化程度高:数字集成控制器,可按用户设定自动控制器燃烧工况,操作简单方便,自动点火,自动上料,自动清灰,燃气锅炉操作同等方便。
12、**:采用高标准,高质量的辅机,附件和自动控制设备,保证锅炉**、稳定运行热力足。
13、外观新颖:锅炉设计美观大方。

